Largo Augusto
Prestigioso plurilocale in stabile d'epoca con box
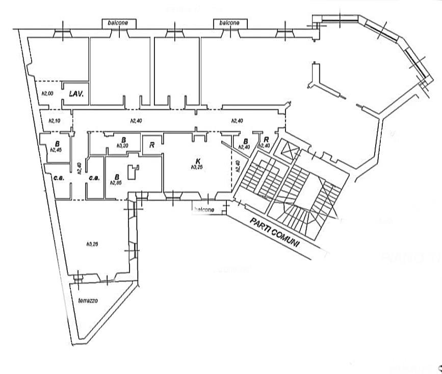
Davanti ai Giardini della Guastalla, proponiamo in vendita prestigioso plurilocale di 380 mq, dotato di vista sul Duomo, al terzo piano di uno stabile d’epoca angolare di grande fascino e rappresentanza.
Il cuore di questo appartamento è rappresentato da un soggiorno triplo a pianta semi-circolare dotato di una parete finestrata continua, le cui finestre ad arco decorate in stile liberty, distribuite lungo l’intero sviluppo curvilineo della stanza, valorizzano la luminosità e conferiscono all’ambiente un’eleganza senza tempo. A ridosso di questo ambiente ritroviamo un doppio salone da pranzo che completa la zona giorno attribuendo a questa unità lo charme di una vera e propria ambasciata e una cucina ampia vivibile con isola sovrastata da cappa di design e balcone. Proseguendo, la zona notte si dirama in quattro camere matrimoniali. Tra queste, la master bedroom è dotata di ampio bagno en suite, spaziosa cabina armadio e accesso diretto ad un grande terrazzo. Altri tre bagni, ripostigli e un locale lavanderia, completano questa soluzione immobiliare, unica nel suo genere.
Un valore aggiunto particolarmente apprezzabile è la presenza di un ampio e comodo box auto situato all’interno dello stabile.
Per qualsiasi richiesta o informazione:
02.74236850 ufficio Piazza Sempione, 8 – 335.5997915 Enrico Giorgetti







